Quy hoạch phát triển Trường Đại học Kinh tế - Luật
Quy hoạch phát triển Trường Đại học Kinh tế - Luật
QUY HOẠCH PHÁT TRIỂN XÂY DỰNG TRƯỜNG ĐẠI HỌC KINH TẾ - LUẬT
Trường Đại học Kinh tế - Luật (trước đây là Khoa Kinh tế trực thuộc ĐHQG-HCM) được ĐHQG-HCM giao nhiệm vụ đào tạo nguồn nhân lực chất lượng cao trong lĩnh vực kinh tế, luật và quản lý. Hiện nay, Trường đang đào tạo 15 ngành ở trình độ cử nhân, 8 ngành trình độ thạc sĩ, 4 chuyên ngành trình độ tiến sỹ.
Trên cơ sở quy hoạch chi tiết 1/2000 được Thủ tướng Chính phủ phê duyệt theo Quyết định số 660/QĐ-TTg, ngày 17/6/2003 và Quy hoạch chi tiết 1/500 Khoa Kinh tế - Luật được Giám đốc Đại học Quốc gia TP.HCM phê duyệt theo Quyết định số 35/QĐ/ĐHQG-KHTC, dự án đã cơ bản hoàn thành giai đoạn 1, bước đầu mang đến cho nhà trường một cơ sở khang trang và hiện đại gồm khối nhà điều hành học tập, khối hội trường, khối căn tin, các công trình phụ trợ kèm theo hệ thống hạ tầng kỹ thuật đáp ứng cho nhu cầu sử dụng của các công trình nêu trên.

Khối quản lý hành chính hiện hữu (14.719 m2 sàn), Số tầng: 9 tầng
Ngày khởi công: 20/11/2008, ngày hoàn thành đưa vào sử dụng: 05/05/2010

Khối Hội trường hiện hữu (2.110 m2 sàn); Số tầng: 3 tầng
Ngày khởi công: 07/10/2009, ngày hoàn thành đưa vào sử dụng : 29/12/2010 
Căn tin hiện hữu (734,4 m2 sàn), ngày khởi công: 12/12/2012, ngày hoàn thành đưa vào sử dụng : 30/8/2013

Nhà xe ô tô hiện hữu (600 m2 sàn), ngày hoàn thành đưa vào sử dụng : 26/3/2012

Trung tâm nghiên cứu Kinh tế - Tài chính thuộc Khối quản lý hành chính 
Cơ sở dữ liệu Thomson Reuters của Trung tâm nghiên cứu Kinh tế - Tài chính
Phòng đọc Hoa Sen từ nguồn vốn tài trợ của Tập đoàn Hoa Sen t huộc Khối quản lý hành chính

Quầy mượn sách; Tủ sách vàng do các giáo sư trong và ngoài nước trao tặng
Với quy mô đào tạo không ngừng tăng lên, những hạng mục cơ bản nêu trên chưa thể đáp ứng yêu cầu về cơ sở vật chất. Bên cạnh đó, ngày 21/3/2014, Thủ tướng Chính phủ phê duyệt Quyết định số 409/QĐ-TTg về việc phê duyệt điều chỉnh quy hoạch chi tiết xây dựng tỷ lệ 1/2.000 Đại học Quốc gia TP.HCM.
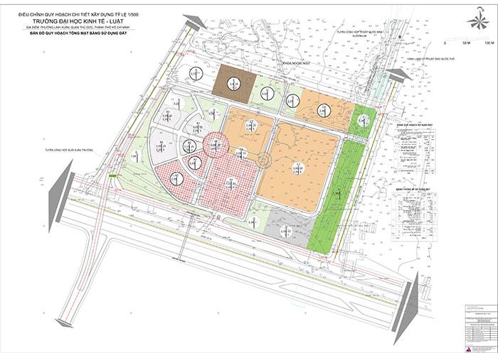
Thực hiện theo Quyết định của Thủ tướng Chính phủ nêu trên, ngày 25/6/2015 Giám đốc ĐHQG-HCM đã phê duyệt Quyết định số 761/QĐ-ĐHQG về việc phê duyệt điều chỉnh quy hoạch chi tiết xây dựng tỷ lệ 1/500 Trường Đại học kinh tế - Luật, thuộc dự án thành phần QG-HCM-12, với một số nội dung cơ bản như sau: Diện tích đất: 17,12 ha; Quy mô sinh viên: 6.000 sinh viên chính quy; Quy mô cán bộ, giảng viên: 1.040 cán bộ, giảng viên và tổng diện tích sàn: 96.000 m2 sàn.
- Về vị trí : Khu dự án đầu tư xây dựng Trường Đại học Kinh tế - Luật là cửa ngõ Tây Nam của Khu đô thị ĐHQG-HCM, thuộc phường Linh Xuân, quận Thủ Đức, TP.HCM.

- Về quy hoạch sử dụng đất:
- Phối cảnh tổng thể: Công trình ẩn hiện trong không gian xanh bao trùm; ngăn cách giữa các khối chức năng là không gian cây xanh, sân vườn; mỗi khối công trình đều có những khoảng sân trong thoáng rộng; mỗi cụm chức năng đều có không gian quảng trường, cây xanh, vườn tượng...


Phối cảnh tổng thể Trường Đại học Kinh tế - Luật góc nhìn trên cầu vượt Vành Đai 03
Phối cảnh tổng thể Trường Đại học Kinh tế - Luật góc nhìn trên cầu vượt Vành Đai 03
Phối cảnh tổng thể Trường Đại học Kinh tế - Luật góc nhìn hướng từ nhà điều hành ĐHQG-HCM

Phối cảnh tổng thể các công trình kiến trúc góc nhìn từ
Ký túc xá khu B của ĐHQG-HCM (30.000 sinh viên)
Khối quản lý hành chính: Bao gồm các phòng làm việc của lãnh đạo trường; các phòng, ban, trung tâm, viện trực thuộc; các phòng họp, phòng tiếp khách có quy mô khác nhau. Tạo không gian thoáng mát, yên tĩnh và đầy đủ tiện nghi cho cán bộ giảng viên nghiên cứu và phát huy sáng tạo trong công việc.Đây là khối nhà hiện hữu 9 tầng giữ lại. Hình thức kiến trúc bao che công trình được cải tạo tạo thành điểm nhấn cho toàn trường đồng thời là điểm nhấn ờ cửa ngõ phía Tây Nam của ĐHQG-HCM.
Khối quản lý hành chính (14.719 m2 sàn), Số tầng: 9 tầng.

Cận cảnh Khối quản lý hành chính

Không gian quảng trường chính trước Khối quản lý hành chính
Khu lớp học: Bao gồm các phòng học, đáp ứng đủ cho quy mô đào tạo 6.000 sinh viên chính quy với các loại phòng học khác nhau: 30 chỗ, 60 chỗ, 90 chỗ, 120 chỗ. Sinh viên sẽ có cơ hội phát huy năng lực, kỹ năng của bản thân một cách toàn diện trong một không gian học tập có đầy đủ tiện nghi đạt tiêu chuẩn quốc tế.

Khối lớp học, (gồm Khối lớp học (27.120m2 sàn), Số tầng: 6 tầng

Phối cảnh một góc Khối lớp học
.
Kiến trúc khối lớp học với hệ thống lam đón gió lấy ý tưởng
từ giá trị truyền thống là hình ảnh cây tre Việt Nam

Phối cảnh tòa nhà lớp học

Không gian khối học tập

Không gian giao thông nội bộ khối học tập
Khối văn phòng khoa : gồm 2 dãy 6 tầng, bố trí các khoa của 3 khối ngành: Khối ngành kinh tế, khối ngành luật, khối ngành kinh doanh và quản lý. Cung cấp đầy đủ tiện nghi cho cán bộ giảng viên tham gia nghiên cứu, phát triển khả năng sáng tạo.

Không gian văn phòng khoa
Khối giảng đường(5.775 m2 sàn):

Khối giảng đường (5.775 m2 sàn), Số tầng: 3 tầng,
bao gồm các giảng đường 300 chỗ, 200 chỗ và 150 chỗ.

Hình ảnh bên trong Khối giảng đường
Một góc khối giảng đường thiết kế giật cấp đảm bảo góc nhìn cho người học

Không gian giảng đường lớn, kèm các trang thiết bị như âm thanh, ánh sáng...hiện đại.
Khối thư viện (12.855 m2), số tầng: 5 tầng: Đáp ứng đủ cho quy mô đào tạo nêu theo hướng không gian mở và hiện đại với các hình thức phù hợp, với quy mô khoảng 4.000 chỗ. Khối thư viện bao gồm: Các phòng đọc, kho sách, các phòng chuyên đề, phòng chiếu phim và sinh hoạt học thuật; Trung tâm dữ liệu, trung tâm máy tính, phòng đặt máy chủ. Khu tự học: Bố trí xen kẽ tận dụng công năng của các khu vực khác, đảm bảo thoáng mát, yên tĩnh, có thể trong nhà hoặc ngoài trời, khu dịch vụ thư viện.

Thư viện góc nhìn từ khu tập luyện thể dục thể thao

Thư viện góc nhìn từ Khoa Ngoại ngữ

Thư viện góc nhìn từ trên cao
Phối cảnh một góc thư viện

Khu đọc sách, tỉnh lặng suy nghĩ

Quảng trường pháp luật và Con đường kinh tế

Quảng trường pháp luật nơi thể hiện sự nghiêm minh của pháp luật
và tinh thần "Tôn sư trọng đạo"

Khu tự học
Không gian đi bộ

Không gian công viên cây xanh
Khu dịch vụ, trung tâm nghiên cứu (16.500 m2), tầng cao: 5 tầng: bao gồm các trung tâm nghiên cứu, phòng thí nghiệm (phòng mô phỏng thị trường tài chính; phòng mô phỏng kế toán; phòng mô phỏng doanh nghiệp; phòng mô phỏng hoạt động xuất nhập nhẩu; phòng mô phỏng tòa án, .v.v.) Đồng thời khu này còn là nơi cung cấp dịch vụ văn phòng làm việc cho các đơn vị ngoài trường.

Khối tập luyện thể dục thể thao (4.000 m2 sàn), số tầng: 2 tầng: Bao gồm sân luyện tập thể dục thể thao ngoài trời, nhà tập luyện phục vụ cho sinh viên và cung cấp dịch vụ cho các đối tượng ngoài trường, cụ thể là: Khu tập bóng chuyền, Khu tập cầu lông, Khu tập bóng rỗ, Khu tập bóng bàn, Khu tập võ thuật, Khu vực học giáo dục thể chất trong nhà, Khu tập aeroboic, yoga, gym thể hình, sân đa năng, Khu vực ngoài nhà tập luyện thực hiện theo quy hoạch được duyệt: bóng đá, tennis, kết hợp đường chạy bộ (đường pitch) cho sinh viên…

Một góc khu tập luyện thể dục thể thao